和锦华宸悦境售楼处电话丨和锦华宸悦境售楼处地址丨售楼中心详情【认证号码】
扫描到手机,新闻随时看
扫一扫,用手机看文章
更加方便分享给朋友
北京-和锦华宸悦境售楼处电话:400-668-7595转接1234
网上售楼中心〢欢迎来电咨询 〢请提前预约登记看房 〢 1对1销售专业讲解〢
为了提供更完善和专业的服务,参观现场,请提前预约,请勿自行前往,敬请谅解

产品均价:东区约4.1万/㎡、西区约3.8万/㎡
产品总价:约343万起/套
产品户型:95㎡三居、126㎡四居、180㎡四居、150-180㎡叠拼
总 户 数:714户
楼 栋 数:29栋
容 积 率:1.6
绿 地 率:30%
车 位 比:1:1.2
梯 户 比:1梯2户

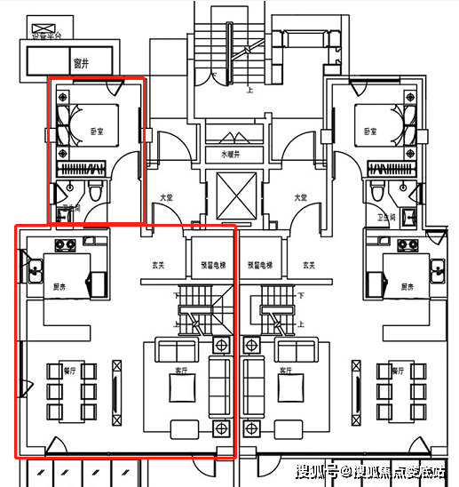
社区规划是用传统的围合式布局,洋房产品做在最外侧 ,把叠拼都放在里边,这也可以理解,毕竟面积大一些的放在里边方便排布,也是很多开发商常用的手法。


这个面积段做三室两厅两卫是比传统89三居室面积大一些,但是计算了一下各个主要功能间的面积发现有放有收,客厅开间3.6米这在同等面积段中是做的比较小的,而套内使用面积也只有大约13平米,两个次卧室南向的大约9平米,北向差一点11平米。
户型在设计上突出南向三面宽布局,以及主卧室的面积,这是亮点,在北侧布局上厨房紧邻卫生间是槽点。




这张图是一个初步的资料因为没有开盘,所以只能根据现有资料进行分析。
猜想一:电梯不会是私家电梯,因为有中叠,在图上我们也能看出来,电梯设计是一部电梯两侧开门。
为什么要在这里标首层,因为叠拼的楼栋有五层有六层,所以上叠的楼层有还有变化,我们就用首层来表示。



赠送部分,挑高以及面积没有详细数据。

标出来的部分是一户,面积应是和上叠首层相同的,不同的是下叠在室内预留了电梯井,叠拼交付时毛坯所以我们猜想电梯应该需要自己安装,交付应该不会送。
看南侧有预留的门窗空间,所以交付一层应该是有花园的,目前看会做下沉式庭院的设计,面积数据不详,等待准备开盘以后看吧。


这是二期的规划图,也是分为两个地块,西区编号是0,东区编号是3。
二期规划27栋住宅楼,全部为平层产品,户型是95平米三居室和126四居室,这里不再重复分析了,参考一期户型分析。


北京-和锦华宸悦境售楼处电话:400-668-7595转接1234
网上售楼中心〢欢迎来电咨询 〢请提前预约登记看房 〢 1对1销售专业讲解〢
为了提供更完善和专业的服务,参观现场,请提前预约,请勿自行前往,敬请谅解
声明:本文由入驻焦点开放平台的作者撰写,除焦点官方账号外,观点仅代表作者本人,不代表焦点立场。
